Av. Beiró 5025, Devoto

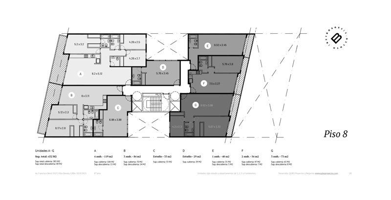
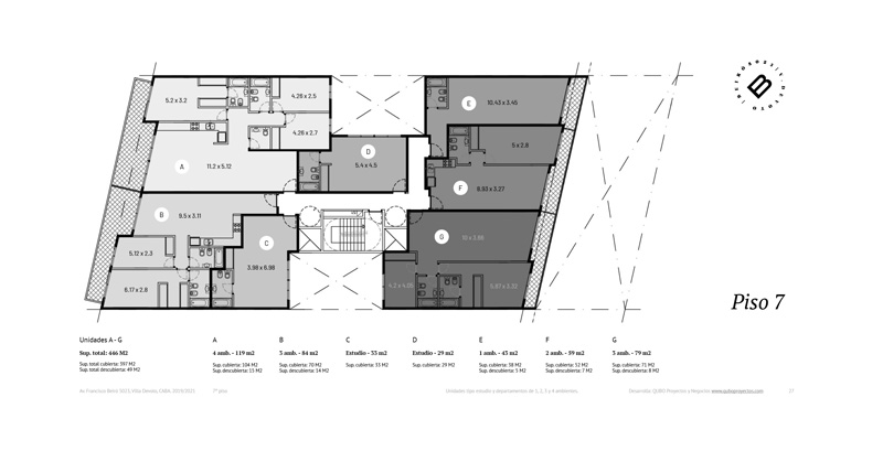
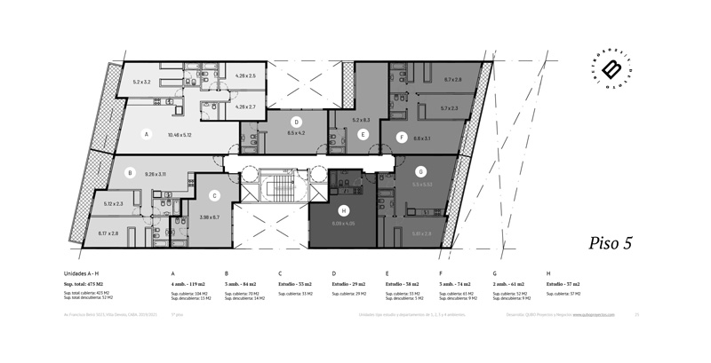
Edificio de doble frente de unidades tipo estudio y departamentos de 1, 2, 3 y 4 ambientes.

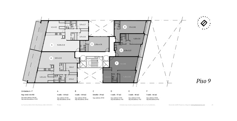
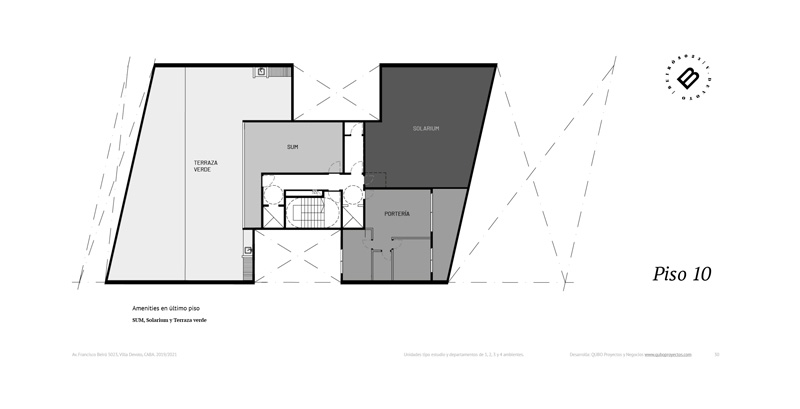
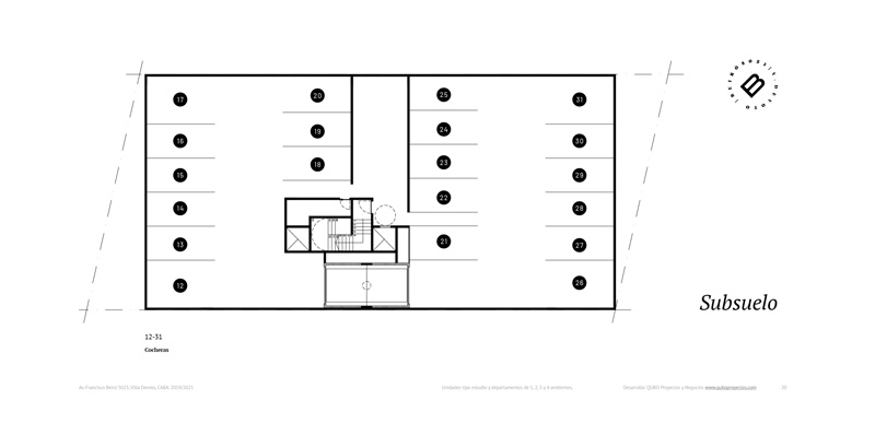
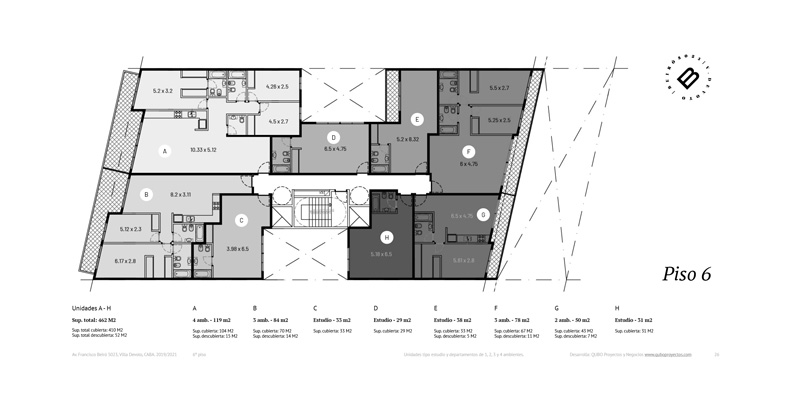
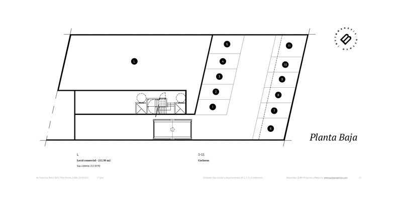
El proyecto se desarrolla en nueve pisos con un local comercial de categoría y cocheras cubiertas en Subsuelo y Planta Baja. En el último piso se encuentran los amenities: solárium, parrillas, área de recreación y duchas.

Plantas y planos de unidades

Consultá por las unidades disponibles

Reservá tu unidad AHORA!

Completá el formulario y nos pondremos en contacto.

¿Te gustaría invertir en Real Estate?

Ofrecemos las mejores condiciones de inversión en proyectos inmobiliarios. Consultanos las opciones disponible.

Por favor dejanos tu mensaje